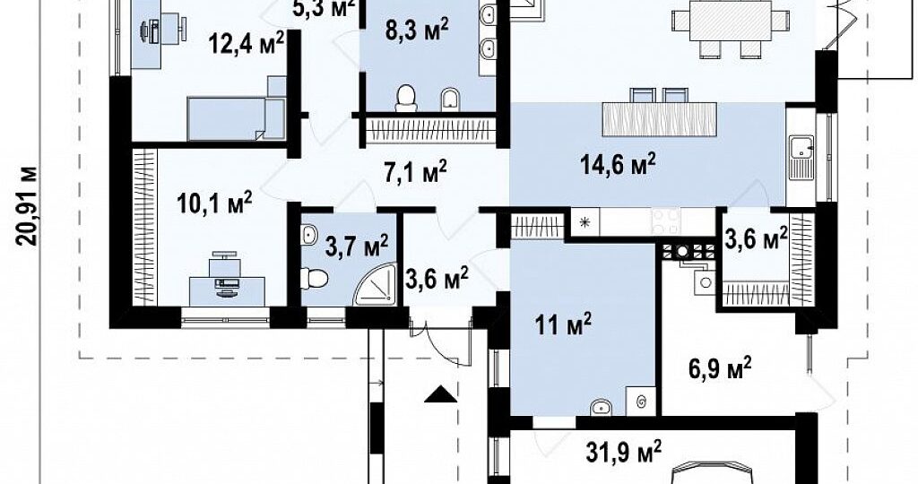
P9CategoryDomy s garážíUžitná plocha202,9 m² Garáž31,9 m²Zastavěná plocha290,0 m²Výška6,82 mSklon střechy25°Přejít zpět na Nabídku rodinných domů. previousP10nextP8